駿東郡長泉町(売マンション)
駿東郡長泉町
高層階角部屋
富士山・駿河湾眺望有
所在地 駿東郡長泉町 交通 JR
三島駅
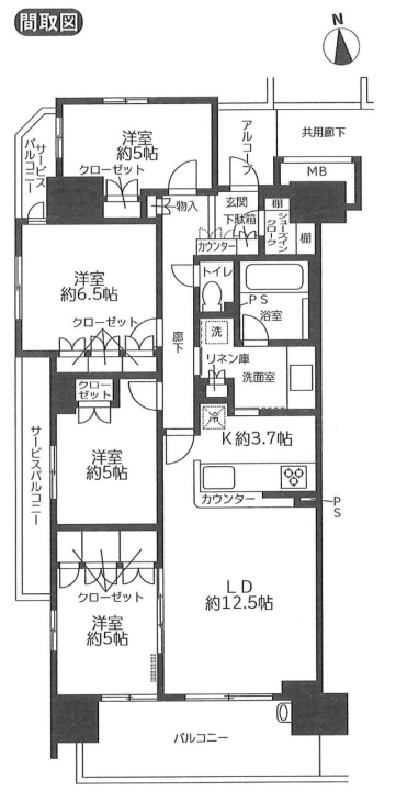
価格 4,680万円 間取り 4SLDK
管理費 17400 修繕積立 16060
管理形態 全部委託 駐車料 1台有
専有面積 89.21m2(26.98坪) バルコニー 18.46m2(5.58坪)
築年数 平成26年2月 構造規模 RC造11階建8階部分
設備 電気・上下水道・都市ガス 学区 長泉南小・長泉中
備考 シャリエ長泉サウスプレイス
取引態様 媒介 物件番号 FF1SM1812
詳細画像2
駿東郡長泉町
詳細画像3
駿東郡長泉町
詳細画像4
駿東郡長泉町
詳細画像5
駿東郡長泉町
詳細画像6
駿東郡長泉町
詳細画像7
駿東郡長泉町
詳細画像8
駿東郡長泉町
詳細画像9
駿東郡長泉町
詳細画像10
駿東郡長泉町
詳細画像11
駿東郡長泉町
資料請求・お問合せはこちら

Copyright (C) 2010 物件探邸団. All Rights Reserved.